1.产品名称
旋压钼坩埚(SPUN MOLYBDENUM CRUCIBLE)
2.产品规格
根据产品的几何形状和尺寸,分为Ø15吋、Ø17吋、Ø20吋、其他规格。
3.产品的形状和尺寸要求
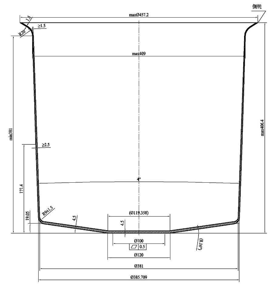
3.1 Ø15吋旋压钼坩埚的形状和尺寸要求见图1。图中未注公差按照自由偏差进行。

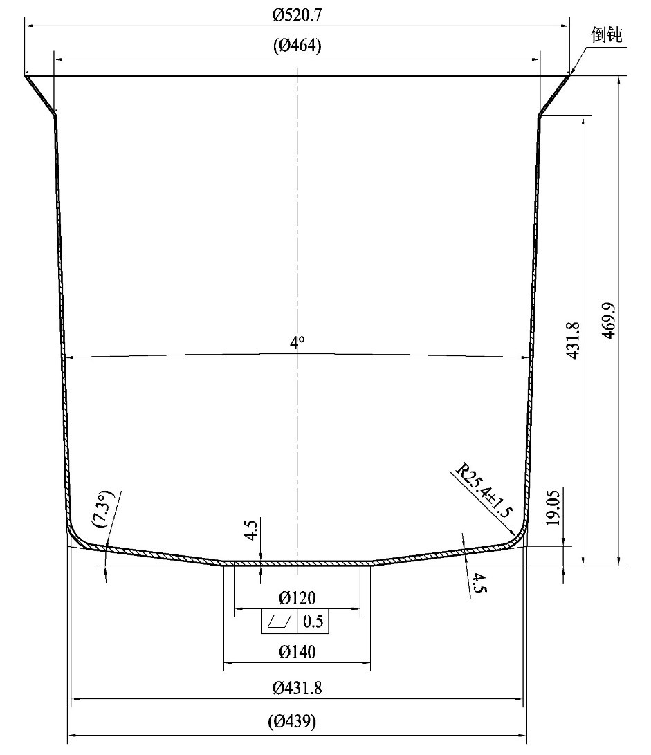
3.2 Ø17吋旋压钼坩埚的的形状和尺寸要求见图2。不同高度的壁厚要求见图3。图中未注公差按照自由偏差进行。


高度/mm |
标称壁厚/mm(±0.4) |
75 |
3.50 |
150 |
3.00 |
225 |
2.75 |
300 |
2.50 |
400 |
2.00 |
图3 |
3.3 Ø20吋旋压钼坩埚的形状和尺寸要求见图4。图中未注公差按照自由偏差进行。
3.4 其他规格的旋压钼坩埚的形状和尺寸要求由供需双方协商确定。

图4
4.化学成分
产品化学成分应符合表1规定。
表1 (质量分数,%)
元素 |
含量,不大于 |
Mo |
≥99.97% |
Fe |
0.0050 |
Ni |
0.0020 |
Al |
0.0020 |
Si |
0.0020 |
Ca |
0.0020 |
Mg |
0.0010 |
P |
0.0010 |
C |
0.0060 |
O |
0.0060 |
N |
0.0030 |
5.外观质量
5.1 钼坩埚的底部平面与底部锥面的分界线应清晰,肉眼可见。
5.2 钼坩埚的底部平面的平面度应满足图1~4的要求。
6.表面质量
6.1 钼坩埚的内表面应光滑,无手感的波纹、折叠。
6.2 钼坩埚的内、外表面应无肉眼可见的起皮、凹坑、划伤、金属或非金属压入缺陷。
6.3 钼坩埚的内、外表面应无氧化皮、油渍等脏物。
7内部组织
钼坩埚的整个轮廓内,应无深度大于0.4mm、宽度大于0.8mm的内裂纹和外裂纹。
8.包装
9.1 产品采用单件包装。
9.2 每件产品采用真空包装,真空袋内放置干燥剂,真空袋放置在垫有泡沫隔板的纸箱内。
9.3 每个包装箱内放置质量证明书。
9.推荐用途
旋压钼坩埚具有良好地抗高温蠕变性能,再加上钼金属原本具有的熔点高、高温强度好、低污染、抗摩耐腐蚀、热传导率大、热膨胀系数小、淬透性好的特点,被广泛应用于蓝宝石长晶,稀土冶炼、镀膜等行业,当做熔炼承装的容器。
10.其他
用户如有特殊要求,供需双方协商解决。